Info@brokerinmuebles.mx

Info@brokerinmuebles.mx

81 1659 3225

En renta
Oficina corporativa amueblada en renta en el centro de Monterrey
Área rentable
456 m²
Estacionamientos
piso
36
Mantenimiento
$32,376.00

Acerca de esta propiedad

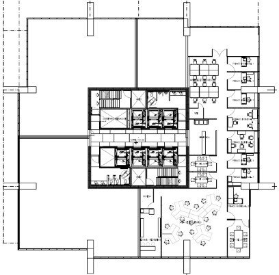
Oficina corporativa amueblada en renta en el centro de Monterrey, sobre Avenida Constitución, dentro de uno de los complejos más importantes de la ciudad (Pabellón M).

Características del espacio:
-Equipada, con mobiliario.
-Área de recepción, 8 privados, 1 sala de juntas de 8 personas, 2 salas de juntas de 6 personas, área abierta 1 (18 personas), área abierta 2 (12 personas), cocineta y bodega con sink.

Instalaciones:
-Sistema de detección, sistema de ataque contraincendios, equipos de aire acondicionado, iluminación, piso cerámico, cancelería.

Amenidades:
-Comedor de empleados, uso de salas en Centro Ejecutivo y lactario.
-Estacionamiento techado, 6 elevadores, seguridad 24/7.
-Restaurantes y food court, gimnasio, guardería, bancos, hotel, centro de convenciones, cine, entre otros.

Área neta rentable: 456.70 m2
Costo de renta por m2: $515.00
Costo de mantenimiento por m2: $71.00
Cajones de estacionamiento incluidos: 18
Costo cajón adicional: $2497.00

Características destacadas

Estacionamiento techado

Roof garden

Terraza

Accesibilidad para personas con discapacidad

Amueblado

Elevador

Seguridad 24 horas

Cine

Gimnasio

Ubicación

¿Interesado en esta propiedad?

Diego Trejo

Inmobiliaria de Diego Trejo

Especialista en oficinas corporativas